产品分类
|
|
联系我们 Contact Us
电话:15533188878
传真:0318-8226221
服务热线:0318-8266668
联系人:白经理
地址:河北省衡水市枣强县人民东街
传真:0318-8226221
服务热线:0318-8266668
联系人:白经理
地址:河北省衡水市枣强县人民东街
WB型冷却塔专用低噪音减速机
发布者:admin 发布时间:2014/9/13
|
|
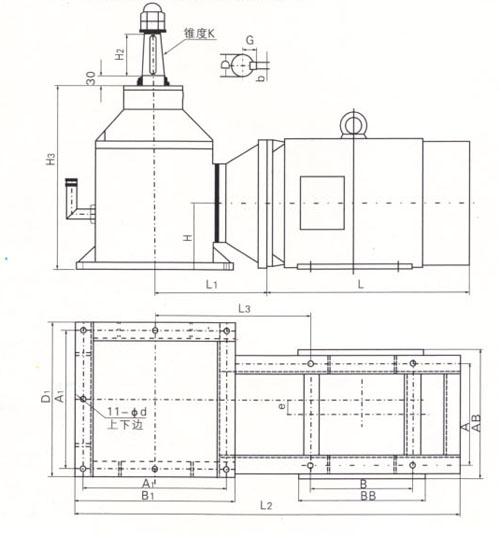
一、概述
WB型循环水冷却塔风机专用低噪音减速机,是我公司根据环保要求、环保噪声而精心设计的一类单级双曲面锥齿轮减速机。该机与电机采用定位止口直联传递动力,取消了传动轴,将防水电机与减速机直联于专用机架上,成为一体置于风筒内,因而运行平衡,噪音低,安装维修简便。本机采用锂基润滑脂ZL-3H( SY1413-80)润滑上轴承,其余轴承和齿轮为浸油润滑,保证了本机械效率高,承载能力强,安全可靠。
因本机采用准双曲面锥齿轮传动,故须加入双曲线齿轮油HL57-28( SY1102-77)或GL-5 85W/90( GB13895-1992)方可运行。
二、技术规格
| WB160 | 转速r/min | 180 | 210 | 270 | 320 |
| 电机功率 | 4-11kw-6P | 4-15kw-4P | |||
| WB180 | 转速r/min | 165 | 210 | 250 | |
| 电机功率 | 4-15kw-6P | 4-22kw-4P | |||
| WB225 | 转速r/min | 165 | 210 | 250 | |
| 电机功率 | 18.5-30kw-6P | 22-37kw-4P | |||
| A1 | B1 | d | e | H3 | L1 | K | H2 | D | b | G | |
| WB160 | 382 | 425 | 16 | 42 | 505 | 306 | 1:10 | 115 | 60 | 18 | 31.1 |
| WB180 | 30 | 325 | 115 | 60 | 18 | 31.1 | |||||
| WB225 | 410 | 455 | 22 | 35 | 570 | 383 | 1:10 | 115 | 70 | 20 | 36.6 |
| 383 | 1:20 | 135 | 80 | 22 | 43.3 |
| 电机功率 | 4KW | 5.5KW | 7.5KW | 11KW | 15KW | 18.5KW | 22KW | 30KW | 37KW | |
| H | 4p | 180 | 180 | 180 | 180 | 180 | 180 | 180 | 225 | 225 |
| 6p | 225 | 225 | / | |||||||
| AB | 4p | 245 | 280 | 280 | 330 | 330 | 335 | 335 | 395 | 435 |
| 6p | 280 | 330 | 355 | 395 | 395 | 435 | / | |||
| A | 4p | 216 | 216 | 254 | 254 | 279 | 279 | 318 | 356 | |
| 6p | 254 | 279 | 318 | 318 | 356 | / | ||||
| B | 4p | 140 | 178 | 210 | 254 | 241 | 279 | 305 | 286 | |
| 6p | 178 | 210 | 254 | 279 | 305 | 305 | 311 | / | ||
| L2 | 6p | 990 | 1025 | 1025 | 1060 | |||||
| 6p | 970 | 1025 | 1045 | 1170 | 1170 | 1204 | ||||
| L3 | 4p | 433 | 433 | 446 | 446 | |||||
| 6p | 414 | 414 | 427 | 516 | 516 | 532 | ||||


